Zoek binnen het forum
Vraag: Spui ventilatie op meerdere gevels
Naam: Erwin, van Architectenbureau Visser en Bouwman b.v. (datum: 13-12-2018 16:18)
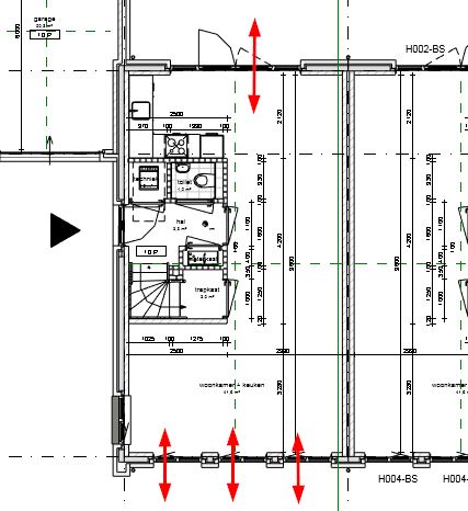
In spui-ventilatieberekeningen was ik altijd gewoon om bij tegenover elkaar gelegen spui-openingen de gevel met de kleinste capaciteit als maatgevend voor de berekening aan te houden (met als luchtsnelheid 0,4).
Zie ook de bijlage voor een voorbeeld.
Nu zie ik bij berekeningen van adviseurs, mede bouwkundigen en architecten dat ze beide gevels optellen en deze als maatgevende capaciteit aanhouden.
Dat kan bij woningen erg veel schelen en daardoor vroeg ik me af wat nu klopt en waar e.e.a. op gebaseerd zou kunnen zijn?
Wellicht interpreteer ik de NEN verkeerd...
Alvast bedankt voor jullie meedenken!
Met vriendelijke groet,
Erwin
Bijlage: spui-voorbeeld.jpg Reageer
Naam: Erwin, van Architectenbureau Visser en Bouwman b.v. (datum: 13-12-2018 16:18)
In spui-ventilatieberekeningen was ik altijd gewoon om bij tegenover elkaar gelegen spui-openingen de gevel met de kleinste capaciteit als maatgevend voor de berekening aan te houden (met als luchtsnelheid 0,4).
Zie ook de bijlage voor een voorbeeld.
Nu zie ik bij berekeningen van adviseurs, mede bouwkundigen en architecten dat ze beide gevels optellen en deze als maatgevende capaciteit aanhouden.
Dat kan bij woningen erg veel schelen en daardoor vroeg ik me af wat nu klopt en waar e.e.a. op gebaseerd zou kunnen zijn?
Wellicht interpreteer ik de NEN verkeerd...
Alvast bedankt voor jullie meedenken!
Met vriendelijke groet,
Erwin
Bijlage: spui-voorbeeld.jpg Reageer
Re: Spui ventilatie op meerdere gevels
Naam: Jack , van SenS (datum: 14-12-2018 09:42)
Zoals jij het aangeeft is volgens mij juist; zo bereken ik het zelf ook altijd; bij spuien via twee gevels is de gevel met de minste doorlaat maatgevend.
Als het verschil tussen de totale doorlaat per gevel erg groot is, dan kan ik me voorstellen dat je alle gevelopeningen bij elkaar optelt en rekent met luchtsnelheid v=0,1m/s (altijd nog gunstiger dan daadwerkelijk alle openingen in één gevel).
Reageer
Naam: Jack , van SenS (datum: 14-12-2018 09:42)
Zoals jij het aangeeft is volgens mij juist; zo bereken ik het zelf ook altijd; bij spuien via twee gevels is de gevel met de minste doorlaat maatgevend.
Als het verschil tussen de totale doorlaat per gevel erg groot is, dan kan ik me voorstellen dat je alle gevelopeningen bij elkaar optelt en rekent met luchtsnelheid v=0,1m/s (altijd nog gunstiger dan daadwerkelijk alle openingen in één gevel).




![[ S&W Consultancy ]](topics//logo.gif)
![[ Emma Interieuradvies]](topics/index/emma.png)