Zoek binnen het forum
Vraag: Stalen scheidingswand trappenhal
Naam: Claire van Melis, van JVR Design (datum: 24-05-2018 13:35)
Beste. Wij hebben opdracht gekregen om een scheidingswand met deur te vervangen voor een stalen pui inclusief stalen deur. De opdrachtgever meld het volgende: "volgens bouwbesluit moeten wij deze woning bouwen met een afgesloten hal om zo de slaapkamers af te scheiden van de living. In het originele ontwerp staat er dus een wand met een gewone deur om deze traphal,
Als we deze zouden willen vervangen voor een stalen pui/afscheiding van jullie, voldoet deze dan aan de eisen zodat we toch deze garantie kunnen geven?"
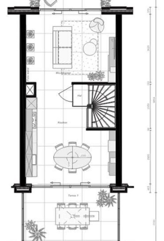
Ik zou hen graag terugkoppeling willen geven, ik zoek alleen wel nog een bevestiging dat het vervangen van de getekende scheidingswand met een stalen glaswand voldoet aan de afscheidingseisen? Als dit niet het geval is, zou dan alleen de deur vervangen voor een stalen deur en de wand wel laten metselen voldoen aan de eisen? (zie bijlage voor situatie)
Dank alvast!
Bijlage: 21341d2.jpg Reageer
Naam: Claire van Melis, van JVR Design (datum: 24-05-2018 13:35)
Beste. Wij hebben opdracht gekregen om een scheidingswand met deur te vervangen voor een stalen pui inclusief stalen deur. De opdrachtgever meld het volgende: "volgens bouwbesluit moeten wij deze woning bouwen met een afgesloten hal om zo de slaapkamers af te scheiden van de living. In het originele ontwerp staat er dus een wand met een gewone deur om deze traphal,
Als we deze zouden willen vervangen voor een stalen pui/afscheiding van jullie, voldoet deze dan aan de eisen zodat we toch deze garantie kunnen geven?"
Ik zou hen graag terugkoppeling willen geven, ik zoek alleen wel nog een bevestiging dat het vervangen van de getekende scheidingswand met een stalen glaswand voldoet aan de afscheidingseisen? Als dit niet het geval is, zou dan alleen de deur vervangen voor een stalen deur en de wand wel laten metselen voldoen aan de eisen? (zie bijlage voor situatie)
Dank alvast!
Bijlage: 21341d2.jpg Reageer
Re: Stalen scheidingswand trappenhal
Naam: A (datum: 24-05-2018 13:59)
Goedendag. Ik zou navragen om welke eisen het gaat. In het bouwbesluit worden er namelijk een boel eisen genoemd. Brand, rook, geluid, etc.
Naam: A (datum: 24-05-2018 13:59)
Goedendag. Ik zou navragen om welke eisen het gaat. In het bouwbesluit worden er namelijk een boel eisen genoemd. Brand, rook, geluid, etc.
Re: Stalen scheidingswand trappenhal
Naam: henk odijk , van bureau 1232 (datum: 25-05-2018 20:48)
Die afscheiding is waarschijnlijk bedoeld om de vereiste geluidisolatie tussen de woonkamer en de slaapkamer (verdieping) te realiseren. ER van uitgaande dat er in de slaapkamer ook een gewone opdekdeur zit stellen de eisen aan de deur beneden niet veel voor.
Door de deur boven op te waarderen kan die afscheiding beneden zelfs helemaal vervallen.
Naam: henk odijk , van bureau 1232 (datum: 25-05-2018 20:48)
Die afscheiding is waarschijnlijk bedoeld om de vereiste geluidisolatie tussen de woonkamer en de slaapkamer (verdieping) te realiseren. ER van uitgaande dat er in de slaapkamer ook een gewone opdekdeur zit stellen de eisen aan de deur beneden niet veel voor.
Door de deur boven op te waarderen kan die afscheiding beneden zelfs helemaal vervallen.
Re: Stalen scheidingswand trappenhal
Naam: Leon (datum: 25-05-2018 23:49)
Die geluidseis is er niet meer hoor, indien twee verblijfsruimten in open verbinding staan of gescheiden worden door een deur dan vervalt die eis.
Naam: Leon (datum: 25-05-2018 23:49)
Die geluidseis is er niet meer hoor, indien twee verblijfsruimten in open verbinding staan of gescheiden worden door een deur dan vervalt die eis.
Re: Stalen scheidingswand trappenhal
Naam: henk odijk , van bureau 1232 (datum: 26-05-2018 17:59)
Artikel geldt nog steeds, is alleen niet van toepassing bij:
- open verbinding dat is hier niet aan de orde.
-
Naam: henk odijk , van bureau 1232 (datum: 26-05-2018 17:59)
Artikel geldt nog steeds, is alleen niet van toepassing bij:
- open verbinding dat is hier niet aan de orde.
-
Re: Stalen scheidingswand trappenhal
Naam: henk odijk , van bureau 1232 (datum: 26-05-2018 18:00)
- rechtstreeks verbonden door een deur: ook dat is hier niet aan de orde.
Reageer
Naam: henk odijk , van bureau 1232 (datum: 26-05-2018 18:00)
- rechtstreeks verbonden door een deur: ook dat is hier niet aan de orde.




![[ S&W Consultancy ]](topics//logo.gif)
![[ Emma Interieuradvies]](topics/index/emma.png)