Zoek binnen het forum
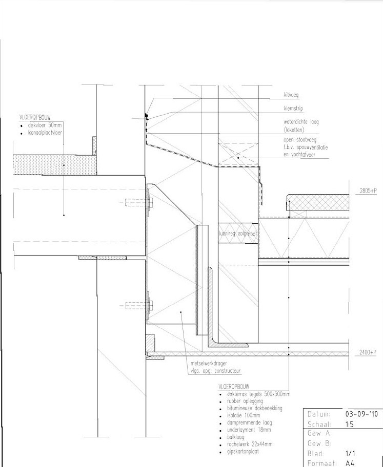
Vraag: Wie kan mij vertellen of dit detail uitvoerbaar is?
Naam: S (datum: 02-11-2017 07:04)
Wie kan mij vertellen of dit detail uitvoerbaar is?
Bijlage: 1F1BC093-6D5F-4022-8C15-D2AD42901EFA.jpeg Reageer
Naam: S (datum: 02-11-2017 07:04)
Wie kan mij vertellen of dit detail uitvoerbaar is?
Bijlage: 1F1BC093-6D5F-4022-8C15-D2AD42901EFA.jpeg Reageer
Re: Wie kan mij vertellen of dit detail uitvoerbaar is
Naam: Leon (datum: 02-11-2017 08:49)
Op een paar kleinigheden na is er m.i. weinig mis mee, hoofdopzet lijkt mij prima (ken de context verder natuurlijk niet). Vanwaar je twijfel?
Naam: Leon (datum: 02-11-2017 08:49)
Op een paar kleinigheden na is er m.i. weinig mis mee, hoofdopzet lijkt mij prima (ken de context verder natuurlijk niet). Vanwaar je twijfel?
Re: Wie kan mij vertellen of dit detail uitvoerbaar is
Naam: Jack , van SenS (datum: 02-11-2017 09:02)
Als je met 'uitvoerbaar' bedoelt of het maakbaar is ... dat denk ik wel.
Op het gebied van thermische isolatie wel wat aandachtspunten; ik denk niet dat je met 100mm isolatie een Rc=6 voor het dak kunt realiseren. Verder staat de spouw van het opgaand metselwerk in open verbinding met de platdak aansluiting eronder; hierdoor koudebrug en kans op vochtproblemen door condensvorming.
Naam: Jack , van SenS (datum: 02-11-2017 09:02)
Als je met 'uitvoerbaar' bedoelt of het maakbaar is ... dat denk ik wel.
Op het gebied van thermische isolatie wel wat aandachtspunten; ik denk niet dat je met 100mm isolatie een Rc=6 voor het dak kunt realiseren. Verder staat de spouw van het opgaand metselwerk in open verbinding met de platdak aansluiting eronder; hierdoor koudebrug en kans op vochtproblemen door condensvorming.
Re: Wie kan mij vertellen of dit detail uitvoerbaar is
Naam: S (datum: 02-11-2017 09:33)
De twijfel zou volgens een deskundige liggen bij de Ipe240 ligger deze zou niet uitvoerbaar zijn ivm ankers binnenspowblad en betonnenkanaalplaatvloer
Naam: S (datum: 02-11-2017 09:33)
De twijfel zou volgens een deskundige liggen bij de Ipe240 ligger deze zou niet uitvoerbaar zijn ivm ankers binnenspowblad en betonnenkanaalplaatvloer
Re: Wie kan mij vertellen of dit detail uitvoerbaar is
Naam: Leon (datum: 02-11-2017 09:48)
De IPE kan ik even niet plaatsen, maar ik neem aan dat je doelt op de geveldrager en diens bevestiging aan de achterconstructie. Dat was één van mijn bedenkingen, er is namelijk een geveldrager getekend die je toepast bij in het werk gestorte vloeren (met een ankerrail). Geveldragers voor kanaalplaatvloeren zien er iets anders uit qua bevestiging aan/op de vloer.
Naam: Leon (datum: 02-11-2017 09:48)
De IPE kan ik even niet plaatsen, maar ik neem aan dat je doelt op de geveldrager en diens bevestiging aan de achterconstructie. Dat was één van mijn bedenkingen, er is namelijk een geveldrager getekend die je toepast bij in het werk gestorte vloeren (met een ankerrail). Geveldragers voor kanaalplaatvloeren zien er iets anders uit qua bevestiging aan/op de vloer.
Re: Wie kan mij vertellen of dit detail uitvoerbaar is
Naam: Jeroen (datum: 02-11-2017 10:45)
Laat de vloer doorlopen tot het buitenspouwblad. Dan is een opvangconstructie makkelijker en die kan op de bovenzijde van de vloer worden bevestigd. De houten balklaag kan aan het "binnenspouwblad".
Onder de opvang/vloer is de zaak dan volledig te isoleren.
Naam: Jeroen (datum: 02-11-2017 10:45)
Laat de vloer doorlopen tot het buitenspouwblad. Dan is een opvangconstructie makkelijker en die kan op de bovenzijde van de vloer worden bevestigd. De houten balklaag kan aan het "binnenspouwblad".
Onder de opvang/vloer is de zaak dan volledig te isoleren.
Re: Wie kan mij vertellen of dit detail uitvoerbaar is
Naam: Leon (datum: 02-11-2017 11:32)
Als je de vloer onder het buitenblad zet krijg je een koudebrug die je niet op kan lossen.
Naam: Leon (datum: 02-11-2017 11:32)
Als je de vloer onder het buitenblad zet krijg je een koudebrug die je niet op kan lossen.
Re: Wie kan mij vertellen of dit detail uitvoerbaar is
Naam: S (datum: 02-11-2017 13:10)
Dus Leon begrijp ik het goed dat indien de geveldrager wordt aangepast voor een knaalplaatvloer het detail uitgevoerd en gemaakt kan worden?
Naam: S (datum: 02-11-2017 13:10)
Dus Leon begrijp ik het goed dat indien de geveldrager wordt aangepast voor een knaalplaatvloer het detail uitgevoerd en gemaakt kan worden?
Re: Wie kan mij vertellen of dit detail uitvoerbaar is
Naam: Leon (datum: 02-11-2017 13:16)
Zoals gezegd: ik ken de context niet, maar op basis van wat ik in dit detail zie lijkt het wel maakbaar ja. Ik zou wel even aandacht besteden aan de aansluiting van bijvoorbeeld de isolatie. Ik vraag me overigens wel af of het niet goedkoper/eenvoudiger is om in plaats van die geveldrager gewoon de wand naar beneden door te zetten tot op de fundering. Maar daar zal een reden voor zijn neem ik aan.
Naam: Leon (datum: 02-11-2017 13:16)
Zoals gezegd: ik ken de context niet, maar op basis van wat ik in dit detail zie lijkt het wel maakbaar ja. Ik zou wel even aandacht besteden aan de aansluiting van bijvoorbeeld de isolatie. Ik vraag me overigens wel af of het niet goedkoper/eenvoudiger is om in plaats van die geveldrager gewoon de wand naar beneden door te zetten tot op de fundering. Maar daar zal een reden voor zijn neem ik aan.
Re: Wie kan mij vertellen of dit detail uitvoerbaar is
Naam: pino (datum: 02-11-2017 13:31)
een geveldrager gebruiken om een dak op te laten rusten is niet helemaal de bedoeling van die dingen
je kan beter een stevigere ligger gebruiken opgelegd op de bouwmuur of een paar kolommetjes net voor de bouwmuur.
Naam: pino (datum: 02-11-2017 13:31)
een geveldrager gebruiken om een dak op te laten rusten is niet helemaal de bedoeling van die dingen
je kan beter een stevigere ligger gebruiken opgelegd op de bouwmuur of een paar kolommetjes net voor de bouwmuur.
Re: Wie kan mij vertellen of dit detail uitvoerbaar is
Naam: Leon (datum: 02-11-2017 13:43)
Een ligger op twee (of meerdere) steunpunten is inderdaad een stuk eenvoudiger, maar ik ga er gemakshalve even vanuit dat dat hier niet kan en/of niet wenselijk is. Maar dat is dus de context die mist in de vraagstelling...
Naam: Leon (datum: 02-11-2017 13:43)
Een ligger op twee (of meerdere) steunpunten is inderdaad een stuk eenvoudiger, maar ik ga er gemakshalve even vanuit dat dat hier niet kan en/of niet wenselijk is. Maar dat is dus de context die mist in de vraagstelling...
Re: Wie kan mij vertellen of dit detail uitvoerbaar is
Naam: Jeroen (datum: 02-11-2017 15:05)
Ik schrijf niet dat de vloer door moet lopen onder het buitenblad. Tot aan het buitenblad kan ook. Dan moet er wel een opvangconstructie komen. Die is dan eenvoudig te maken.
Onder die opvang kan de holle ruimte volledig isolatie worden
Naam: Jeroen (datum: 02-11-2017 15:05)
Ik schrijf niet dat de vloer door moet lopen onder het buitenblad. Tot aan het buitenblad kan ook. Dan moet er wel een opvangconstructie komen. Die is dan eenvoudig te maken.
Onder die opvang kan de holle ruimte volledig isolatie worden
Re: Wie kan mij vertellen of dit detail uitvoerbaar is
Naam: Leon (datum: 02-11-2017 15:15)
Dan is je vloer nog steeds een koudebrug (aan de boven- en/of zijkant).
Naam: Leon (datum: 02-11-2017 15:15)
Dan is je vloer nog steeds een koudebrug (aan de boven- en/of zijkant).
Re: Wie kan mij vertellen of dit detail uitvoerbaar is
Naam: Jeroen (datum: 02-11-2017 16:07)
Nee, want de kunt met wat steuntjes werken die op de vloer en/of binnenblad zijn bevestigd. Enig contact is geen probleem. Spouwankers zijn ook "koudebruggen".
Overigens is elke geveldrager ook een "koudebrug".
Naam: Jeroen (datum: 02-11-2017 16:07)
Nee, want de kunt met wat steuntjes werken die op de vloer en/of binnenblad zijn bevestigd. Enig contact is geen probleem. Spouwankers zijn ook "koudebruggen".
Overigens is elke geveldrager ook een "koudebrug".
Re: Wie kan mij vertellen of dit detail uitvoerbaar is
Naam: Leon (datum: 03-11-2017 08:24)
Ja, dan kom je toch weer op het principe dat getekend is? Steuntjes aan de vloer, isolatie voor de kop van de vloer langs...
Naam: Leon (datum: 03-11-2017 08:24)
Ja, dan kom je toch weer op het principe dat getekend is? Steuntjes aan de vloer, isolatie voor de kop van de vloer langs...
Re: Wie kan mij vertellen of dit detail uitvoerbaar is
Naam: Jeroen (datum: 03-11-2017 14:37)
Je moet af van dat buitenspouwblad met dat naar benden lopende spouwtje. Dat is een gigantische koudebrug!
Naam: Jeroen (datum: 03-11-2017 14:37)
Je moet af van dat buitenspouwblad met dat naar benden lopende spouwtje. Dat is een gigantische koudebrug!
Re: Wie kan mij vertellen of dit detail uitvoerbaar is
Naam: J. Bolte , van BJH Safety Services (datum: 03-11-2017 16:54)
Hoe zit dat bovenste anker van je opvangbalk vast? Heb je daar bij een kanaalplaatvloer genoeg vlees voor?
Naam: J. Bolte , van BJH Safety Services (datum: 03-11-2017 16:54)
Hoe zit dat bovenste anker van je opvangbalk vast? Heb je daar bij een kanaalplaatvloer genoeg vlees voor?
Re: Wie kan mij vertellen of dit detail uitvoerbaar is
Naam: J. Bolte , van BJH Safety Services (datum: 03-11-2017 16:55)
Ah, Leon had het al genoemd zie ik nu.
Naam: J. Bolte , van BJH Safety Services (datum: 03-11-2017 16:55)
Ah, Leon had het al genoemd zie ik nu.
Re: Wie kan mij vertellen of dit detail uitvoerbaar is
Naam: Jeroen (datum: 04-11-2017 12:12)
Detaillering kan dus niet!
Naam: Jeroen (datum: 04-11-2017 12:12)
Detaillering kan dus niet!
Re: Wie kan mij vertellen of dit detail uitvoerbaar is
Naam: pino (datum: 06-11-2017 16:30)
In zijn algemeenheid kan je ankers in de kop van een kanaalplaat best oplossen.
Paar kanaaltjes open wapen en je krijgt ter plekke van de ankers min of meer massief beton.
Naam: pino (datum: 06-11-2017 16:30)
In zijn algemeenheid kan je ankers in de kop van een kanaalplaat best oplossen.
Paar kanaaltjes open wapen en je krijgt ter plekke van de ankers min of meer massief beton.
Re: Wie kan mij vertellen of dit detail uitvoerbaar is
Naam: Jeroen (datum: 08-11-2017 21:40)
Dat min of meer geeft al aan dat het geen oplossing is die goed rekenkundig is te benaderen. Betrouwbare oplossing? Denk maar eens aan die vloer bij het vliegveld in Eindhoven.
Als constructeur kun je er nooit verantwoordelijkheid voor nemen.
Naam: Jeroen (datum: 08-11-2017 21:40)
Dat min of meer geeft al aan dat het geen oplossing is die goed rekenkundig is te benaderen. Betrouwbare oplossing? Denk maar eens aan die vloer bij het vliegveld in Eindhoven.
Als constructeur kun je er nooit verantwoordelijkheid voor nemen.
Re: Wie kan mij vertellen of dit detail uitvoerbaar is
Naam: pino (datum: 09-11-2017 14:08)
zal het tegen de baas vertellen
Uiteraard nemen wij wel verantwoording voor de berekening (uitvoering is een ander puntje)
Naam: pino (datum: 09-11-2017 14:08)
zal het tegen de baas vertellen
Uiteraard nemen wij wel verantwoording voor de berekening (uitvoering is een ander puntje)
Re: Wie kan mij vertellen of dit detail uitvoerbaar is
Naam: Jeroen (datum: 10-11-2017 20:43)
Ja, en daar ging het onder meer in Eindhoven op fout!
Reageer
Naam: Jeroen (datum: 10-11-2017 20:43)
Ja, en daar ging het onder meer in Eindhoven op fout!




![[ S&W Consultancy ]](topics//logo.gif)
![[ Emma Interieuradvies]](topics/index/emma.png)