Zoek binnen het forum
Vraag: onterechte kosten bestemmingsplanwijziging?
Naam: Koen (datum: 24-08-2011 19:44)
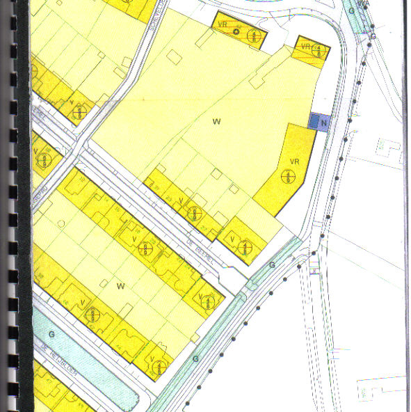
Mijn ouders hebben in het verleden grond af "moeten" staan aan de gemeente ivm de uitbreiding van de dorpskern. Als financiele tegenprestatie kregen ze de mogelijkheid om op het eigen perceel 2 woningen te bouwen, de grond werd daardoor meer waard. Deze afspraak is vastgelegd bij de notaris en vervolgens (1996) is ook in het bestemmingsplan voor het gehele gebied de woonbestemming gerealiseerd. Er zijn in dat plan 2 mogelijke woningen getekend en er zijn ook 2 huisnummers (17 en 19)voor vrijgelaten. De percelen liggen midden in de straat.
Mijn ouders hebben nooit gebruik gemaakt van de mogelijkheid om te bouwen, omdat ze de percelen voor de kinderen hebben bewaard. Nu wij er willen bouwen blijkt dat het bestemmingsplan in 2007 herzien is. Bij die herziening is het bouwvlak uit het bestemmingsplan verwijderd (zie bijlage), omdat de huizen niet gebouwd waren (het was in gebruik als grasland). Deze wijziging bestemmingsplan is nooit aan ons medegedeeld en wij wisten hier dus niet van. Het heeft wel in een lokaal krantje gestaan, maar dat lees ik nooit. Daarom is ook nooit bezwaar gemaakt tegen de wijziging. Als wij dit wel hadden geweten was het volgende niet van toepassing geweest.
Nu wil de gemeente wel meewerken om het bouwvlak weer terug te plaatsen, maar zij geven aan dat wij het bestemmingsplan moeten wijzigen. De gemeente vraagt voor deze wijziging ? 34.000,-- + planschade en bijkomende kosten, inhuren extern bureau, etc.
We willen best iets betalen, maar ? 34.000,-- voor een (in onze ogen) simpele wijziging vinden we erg veel geld. Helemaal als je denkt dat zij de notariele afspraak om te mogen bouwen eenzijdig hebben ontbonden. Deze notariele afspraak zijn ze overigens kwijtgeraakt, maar gelukkig hebben wij nog een kopie van de akte.
De gemeente geeft aan dat ze verplicht zijn om deze hoge kosten te vragen omdat het middels artikel 6.12 Wro moet worden gewijzigd. Weet iemand of het mogelijk is om de wijziging op een eenvoudigere/goedkopere manier te kunnen realiseren?
We voelen ons namelijk erg voor de gek gehouden, omdat wij moeten betalen voor de fout die de gemeente in 2007 heeft gemaakt. Je haalt toch niet zomaar een bouwvlak uit een bestemmingsplan zonder te overleggen?!?! Ik wil graag met een tegenbod komen voor de gemeente om dit op een juiste manier op te lossen, maar de gemeente wil totaal niet meedenken aan een oplossing.
Kan iemand mij helpen?
Koen
Bijlage: Bestemmingsplan_2007.jpg Reageer
Naam: Koen (datum: 24-08-2011 19:44)
Mijn ouders hebben in het verleden grond af "moeten" staan aan de gemeente ivm de uitbreiding van de dorpskern. Als financiele tegenprestatie kregen ze de mogelijkheid om op het eigen perceel 2 woningen te bouwen, de grond werd daardoor meer waard. Deze afspraak is vastgelegd bij de notaris en vervolgens (1996) is ook in het bestemmingsplan voor het gehele gebied de woonbestemming gerealiseerd. Er zijn in dat plan 2 mogelijke woningen getekend en er zijn ook 2 huisnummers (17 en 19)voor vrijgelaten. De percelen liggen midden in de straat.
Mijn ouders hebben nooit gebruik gemaakt van de mogelijkheid om te bouwen, omdat ze de percelen voor de kinderen hebben bewaard. Nu wij er willen bouwen blijkt dat het bestemmingsplan in 2007 herzien is. Bij die herziening is het bouwvlak uit het bestemmingsplan verwijderd (zie bijlage), omdat de huizen niet gebouwd waren (het was in gebruik als grasland). Deze wijziging bestemmingsplan is nooit aan ons medegedeeld en wij wisten hier dus niet van. Het heeft wel in een lokaal krantje gestaan, maar dat lees ik nooit. Daarom is ook nooit bezwaar gemaakt tegen de wijziging. Als wij dit wel hadden geweten was het volgende niet van toepassing geweest.
Nu wil de gemeente wel meewerken om het bouwvlak weer terug te plaatsen, maar zij geven aan dat wij het bestemmingsplan moeten wijzigen. De gemeente vraagt voor deze wijziging ? 34.000,-- + planschade en bijkomende kosten, inhuren extern bureau, etc.
We willen best iets betalen, maar ? 34.000,-- voor een (in onze ogen) simpele wijziging vinden we erg veel geld. Helemaal als je denkt dat zij de notariele afspraak om te mogen bouwen eenzijdig hebben ontbonden. Deze notariele afspraak zijn ze overigens kwijtgeraakt, maar gelukkig hebben wij nog een kopie van de akte.
De gemeente geeft aan dat ze verplicht zijn om deze hoge kosten te vragen omdat het middels artikel 6.12 Wro moet worden gewijzigd. Weet iemand of het mogelijk is om de wijziging op een eenvoudigere/goedkopere manier te kunnen realiseren?
We voelen ons namelijk erg voor de gek gehouden, omdat wij moeten betalen voor de fout die de gemeente in 2007 heeft gemaakt. Je haalt toch niet zomaar een bouwvlak uit een bestemmingsplan zonder te overleggen?!?! Ik wil graag met een tegenbod komen voor de gemeente om dit op een juiste manier op te lossen, maar de gemeente wil totaal niet meedenken aan een oplossing.
Kan iemand mij helpen?
Koen
Bijlage: Bestemmingsplan_2007.jpg Reageer
Re: onterechte kosten bestemmingsplanwijziging
Naam: tim (datum: 24-08-2011 21:28)
als ik het zo lees, dan heeft de gemeente geen juridische fout gemaakt. eigenaren moeten zelf de publicaties in het huis-aan-huis krantje in de gaten houden. hoewel het wel afhankelijk is welke termijn in 1996 is afgesproken. normaalgesproken heeft een bestemmingsplan een termijn van 10 jaar.
vanuit klantgerichtheid-gedachte zou de gemeente hier wat soepeler (goedkoper) mee om kunnen gaan, door niet alle kosten door te berekenen. wellicht dat een gesprek met het hoofd of de wethouder helpt.
Naam: tim (datum: 24-08-2011 21:28)
als ik het zo lees, dan heeft de gemeente geen juridische fout gemaakt. eigenaren moeten zelf de publicaties in het huis-aan-huis krantje in de gaten houden. hoewel het wel afhankelijk is welke termijn in 1996 is afgesproken. normaalgesproken heeft een bestemmingsplan een termijn van 10 jaar.
vanuit klantgerichtheid-gedachte zou de gemeente hier wat soepeler (goedkoper) mee om kunnen gaan, door niet alle kosten door te berekenen. wellicht dat een gesprek met het hoofd of de wethouder helpt.
Re: onterechte kosten bestemmingsplanwijziging
Naam: pino (datum: 24-08-2011 21:30)
Bij een dergelijke wijziging moet de gemeente de direct belanghebbende op de hoogte brengen met meer dan alleen een publicatie in een suffertje.
het gaat immers om een aanmerkelijk financieel belang.
Kaart het nogmaals aan bij de gemeente
en neem daarbij de stukken van de notaris mee.
Mocht een gesprek niet baten dan heeft u rechtshulp nodig
als extra stok achter de deur kunt u overigens nog steeds planschade claimen voor de wijziging uit 2007
Naam: pino (datum: 24-08-2011 21:30)
Bij een dergelijke wijziging moet de gemeente de direct belanghebbende op de hoogte brengen met meer dan alleen een publicatie in een suffertje.
het gaat immers om een aanmerkelijk financieel belang.
Kaart het nogmaals aan bij de gemeente
en neem daarbij de stukken van de notaris mee.
Mocht een gesprek niet baten dan heeft u rechtshulp nodig
als extra stok achter de deur kunt u overigens nog steeds planschade claimen voor de wijziging uit 2007
Re: onterechte kosten bestemmingsplanwijziging
Naam: tim (datum: 24-08-2011 21:48)
de eeste opmerking van Pino is volgens mij niet gebaseerd op een wettelijke verplichting. anders zou ik dat graag willen zien.
de laatste opmerking is zinvol, wellicht dat je met de gemeente de kosten kunt verrekenen. scheelt de gemeente ook een hoop procedurekosten. planschade moet wel binnen 5 jaar geclaimd worden.
Naam: tim (datum: 24-08-2011 21:48)
de eeste opmerking van Pino is volgens mij niet gebaseerd op een wettelijke verplichting. anders zou ik dat graag willen zien.
de laatste opmerking is zinvol, wellicht dat je met de gemeente de kosten kunt verrekenen. scheelt de gemeente ook een hoop procedurekosten. planschade moet wel binnen 5 jaar geclaimd worden.
Re: onterechte kosten bestemmingsplanwijziging
Naam: J. Bolte , van Yacht (datum: 25-08-2011 12:18)
wat de gemeente aan kosten mag vragen is vastgelegd in de legesverordening. Kijkt u daar eens in of BP-wijzigingen hierin staan opgenomen.
Wanneer de gemeente bijkomende kosten moet maken, moeten ze een andere manier vinden (bijvoorbeeld de aanvrager zelf de ruimtelijke onderbouwing laten opstellen).
Naam: J. Bolte , van Yacht (datum: 25-08-2011 12:18)
wat de gemeente aan kosten mag vragen is vastgelegd in de legesverordening. Kijkt u daar eens in of BP-wijzigingen hierin staan opgenomen.
Wanneer de gemeente bijkomende kosten moet maken, moeten ze een andere manier vinden (bijvoorbeeld de aanvrager zelf de ruimtelijke onderbouwing laten opstellen).
Re: onterechte kosten bestemmingsplanwijziging
Naam: B (datum: 25-08-2011 14:48)
Ik denk dat de kosten die de gemeente opgeeft niet voortvloeien uit de legesverordening maar dat dit kosten zijn die ze vanuit de Grex-wet in rekening mogen / moeten brengen voor het wijzigen van het bestemmingsplan
Naam: B (datum: 25-08-2011 14:48)
Ik denk dat de kosten die de gemeente opgeeft niet voortvloeien uit de legesverordening maar dat dit kosten zijn die ze vanuit de Grex-wet in rekening mogen / moeten brengen voor het wijzigen van het bestemmingsplan
Re: onterechte kosten bestemmingsplanwijziging
Naam: ben bomers , van bbbouwadvies (datum: 27-08-2011 10:07)
@ tim. In het plaatselijke huis aan huis krantje. Dat is de meest absurde onzin die de gemeente bepaald, uitgezonderd dat de gemeente ook kan garanderen dat deze krant bij u wordt afgewleverd. Bij ons is dat DE NIEUWE DINKELLANDER. Zelf weet ik beter, dat deze al 15 jaar niet meer bestaat. Hij wordt nog steeds niet bezorgd maar zeker niet overal.Dus vanuit deze waanzin heb je een punt. Ik zou de gemeente in alle rdelijkheid op aanspreken met het notarieel contract onder de arm.
Naam: ben bomers , van bbbouwadvies (datum: 27-08-2011 10:07)
@ tim. In het plaatselijke huis aan huis krantje. Dat is de meest absurde onzin die de gemeente bepaald, uitgezonderd dat de gemeente ook kan garanderen dat deze krant bij u wordt afgewleverd. Bij ons is dat DE NIEUWE DINKELLANDER. Zelf weet ik beter, dat deze al 15 jaar niet meer bestaat. Hij wordt nog steeds niet bezorgd maar zeker niet overal.Dus vanuit deze waanzin heb je een punt. Ik zou de gemeente in alle rdelijkheid op aanspreken met het notarieel contract onder de arm.
Re: onterechte kosten bestemmingsplanwijziging
Naam: TS (datum: 27-08-2011 15:29)
U heeft in 2007 planschade geleden omdat de bouwbestemming er van af is gehaald. Vroeger kon u daar zich nog altijd op beroepen maar nu is die termijn verkort. Ik raad u aan als eerste na te gaan wat de termijn is waarin u zelf nog een beroep kunt doen op planschade door de wijziging in 2007.
Als de gemeente met u een akte heeft gesloten bij de notaris als privaatrechterlijke partij zijn zij daar ook aangehouden, ongeacht de bestuursrechterlijke weg (het bestemmingsplan).
Ik raad u aan gedegen juridisch advies in te winnen en daarmee naar de gemeente te gaan.
Reageer
Naam: TS (datum: 27-08-2011 15:29)
U heeft in 2007 planschade geleden omdat de bouwbestemming er van af is gehaald. Vroeger kon u daar zich nog altijd op beroepen maar nu is die termijn verkort. Ik raad u aan als eerste na te gaan wat de termijn is waarin u zelf nog een beroep kunt doen op planschade door de wijziging in 2007.
Als de gemeente met u een akte heeft gesloten bij de notaris als privaatrechterlijke partij zijn zij daar ook aangehouden, ongeacht de bestuursrechterlijke weg (het bestemmingsplan).
Ik raad u aan gedegen juridisch advies in te winnen en daarmee naar de gemeente te gaan.




![[ S&W Consultancy ]](topics//logo.gif)
![[ Emma Interieuradvies]](topics/index/emma.png)