Zoek binnen het forum
Vraag: nieuwe opbouw aan gevel opbouw buren
Naam: Stefan (datum: 25-01-2010 21:42)
Geachte,
Wij zijn voornemens op onze garage een uitbreiding te realiseren van onze 1ste verdieping-opbouw. Hierbij wordt de buitenmuur van de bestaande opbouw van de buren gebruikt als nieuwe binnenmuur van onze uitbreiding.
Bouwvergunning is aanwezig maar buren hebben bezwaar gemaakt en weigeren mee te werken.
De kadastrale grens ligt (ter plaatse van de opbouw) op de hartlijn tussen de woningen, betekend dit nu dat de muur van de opbouw van de buren gedeeltelijk van mij is omdat deze op mijn grond (erf) staat?
Zijn de buren daarom verplicht mee te werken aan onze wens om deze uitbouw te realiseren (zoals ook al is uitgevoerd bij andere woningen van hetzelfde type)?
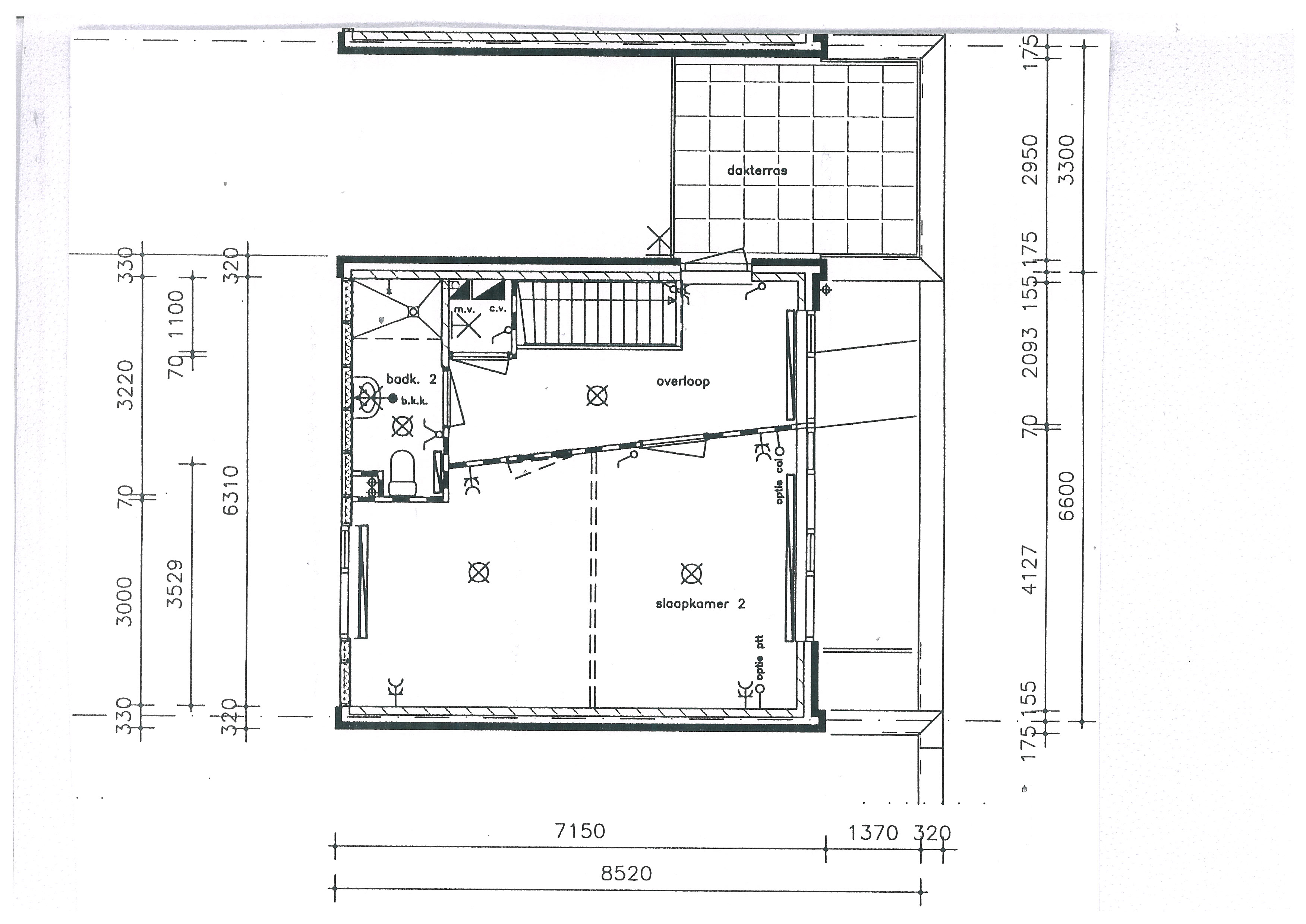
Bijgevoegd schets bestaande opbouw met de locatie van de muur van de buren, hiertussen komt de uitbreiding.
Gr, Stefan
Bijlage: verd liggend.JPG Reageer
Naam: Stefan (datum: 25-01-2010 21:42)
Geachte,
Wij zijn voornemens op onze garage een uitbreiding te realiseren van onze 1ste verdieping-opbouw. Hierbij wordt de buitenmuur van de bestaande opbouw van de buren gebruikt als nieuwe binnenmuur van onze uitbreiding.
Bouwvergunning is aanwezig maar buren hebben bezwaar gemaakt en weigeren mee te werken.
De kadastrale grens ligt (ter plaatse van de opbouw) op de hartlijn tussen de woningen, betekend dit nu dat de muur van de opbouw van de buren gedeeltelijk van mij is omdat deze op mijn grond (erf) staat?
Zijn de buren daarom verplicht mee te werken aan onze wens om deze uitbouw te realiseren (zoals ook al is uitgevoerd bij andere woningen van hetzelfde type)?
Bijgevoegd schets bestaande opbouw met de locatie van de muur van de buren, hiertussen komt de uitbreiding.
Gr, Stefan
Bijlage: verd liggend.JPG Reageer
Re: nieuwe opbouw aan gevel opbouw buren
Naam: Jos (datum: 26-01-2010 11:05)
Hun buitenmuur zal ik gelijk trekken met uw eigen buitenmuur. Als je namelijk hun buitenmuur als binnenmuur gebruikt heb je een koudebrug of vochtdoorslag. Hun spouwmuur kun je namelijk niet zomaar gaan onderbreken om de thermische schil intact te laten. U blijft dan ook mooi binnen uw eigen perceel. Nadeel is wel natuurlijk dat er oppervlakte verloren gaat en dat je moet bekijken hoe de toekomstige binnenwand naar beneden toe gaat worden afgedragen.
Naam: Jos (datum: 26-01-2010 11:05)
Hun buitenmuur zal ik gelijk trekken met uw eigen buitenmuur. Als je namelijk hun buitenmuur als binnenmuur gebruikt heb je een koudebrug of vochtdoorslag. Hun spouwmuur kun je namelijk niet zomaar gaan onderbreken om de thermische schil intact te laten. U blijft dan ook mooi binnen uw eigen perceel. Nadeel is wel natuurlijk dat er oppervlakte verloren gaat en dat je moet bekijken hoe de toekomstige binnenwand naar beneden toe gaat worden afgedragen.
Re: nieuwe opbouw aan gevel opbouw buren
Naam: Stefan (datum: 27-01-2010 14:57)
Jos, bedankt.
De koude brug wilde we opvangen door de buitenmuur ter plaatse van de nieuwe kozijnen in te slijpen.
Het lijkt me een raar gezicht als wij naast de buitenmuur nog een extra binnenmuur neerzetten van ons, en dit kost inderdaad nog eens zo'n 15cm aan ruimte.
Hun (buiten)muur staat volgens de kadasterlijnen op ons erf. Dit zou ons recht moeten geven op het gebruik van deze muur voor het dragen van onze overkapping en als binnenmuur.
Stefan
Reageer
Naam: Stefan (datum: 27-01-2010 14:57)
Jos, bedankt.
De koude brug wilde we opvangen door de buitenmuur ter plaatse van de nieuwe kozijnen in te slijpen.
Het lijkt me een raar gezicht als wij naast de buitenmuur nog een extra binnenmuur neerzetten van ons, en dit kost inderdaad nog eens zo'n 15cm aan ruimte.
Hun (buiten)muur staat volgens de kadasterlijnen op ons erf. Dit zou ons recht moeten geven op het gebruik van deze muur voor het dragen van onze overkapping en als binnenmuur.
Stefan




![[ S&W Consultancy ]](topics//logo.gif)
![[ Emma Interieuradvies]](topics/index/emma.png)