Zoek binnen het forum
Vraag: interessante casus, wie denkt er mee?
Naam: RS, van 2advise (datum: 09-04-2009 10:04)
hallo allemaal,
Ik heb een discussie met een andere partij in het bouwteam. Het gaat om de volgende casus (zie ook de afbeelding):
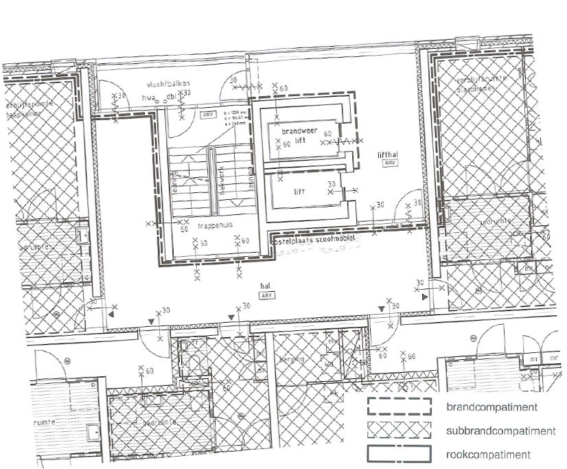
Ik heb een woongebouw, 10 bouwlagen hoog. Er is slechts 1 trappenhuis, dit is dus uitgevoerd als br+rv veiligheidstrappenhuis, via niet besloten ruimte te bereiken (vluchtbalkon). Tussen dit trappenhuis en omliggende ruimtes dient de brandwerendheid 60 minuten te zijn, tot zover geen discussies. Ook over het feit dat de brandweerlift rondom 60 minuten brandwerend is zijn we het eens. Echter, het volgende leidt tot discussie:
- dient de scheiding tussen lifthal en hal 30 minuten te zijn, of mag dat '0' zijn? De vraag is dus, anders gezegd, of de hal en de lifthal twee brandwerend van elkaar gescheiden ruimtes dienen te zijn. Of mag deze scheiding niet brandwerend zijn? Indien dat laatste het geval is, dient de liftdeur van de 'gewone lift' wel 60 minuten ipv 30 te zijn, alsook zelfsluitend denk ik? De reden dat de scheiding tussen hal en lifthal als 30 minuten is aangegeven op de afbeelding is dat het de rookcompartimentsscheiding is. De hamvraag voor dit hele verhaal is denk ik: kan de rookcompartimentsscheiding anders (slimmer) worden gelegd waardoor de wand tussen lifthal en hal niet meer brandwerend hoeft te zijn?
Ben benieuwd naar jullie visies!
Bijlage: afbeelding.jpg Reageer
Naam: RS, van 2advise (datum: 09-04-2009 10:04)
hallo allemaal,
Ik heb een discussie met een andere partij in het bouwteam. Het gaat om de volgende casus (zie ook de afbeelding):
Ik heb een woongebouw, 10 bouwlagen hoog. Er is slechts 1 trappenhuis, dit is dus uitgevoerd als br+rv veiligheidstrappenhuis, via niet besloten ruimte te bereiken (vluchtbalkon). Tussen dit trappenhuis en omliggende ruimtes dient de brandwerendheid 60 minuten te zijn, tot zover geen discussies. Ook over het feit dat de brandweerlift rondom 60 minuten brandwerend is zijn we het eens. Echter, het volgende leidt tot discussie:
- dient de scheiding tussen lifthal en hal 30 minuten te zijn, of mag dat '0' zijn? De vraag is dus, anders gezegd, of de hal en de lifthal twee brandwerend van elkaar gescheiden ruimtes dienen te zijn. Of mag deze scheiding niet brandwerend zijn? Indien dat laatste het geval is, dient de liftdeur van de 'gewone lift' wel 60 minuten ipv 30 te zijn, alsook zelfsluitend denk ik? De reden dat de scheiding tussen hal en lifthal als 30 minuten is aangegeven op de afbeelding is dat het de rookcompartimentsscheiding is. De hamvraag voor dit hele verhaal is denk ik: kan de rookcompartimentsscheiding anders (slimmer) worden gelegd waardoor de wand tussen lifthal en hal niet meer brandwerend hoeft te zijn?
Ben benieuwd naar jullie visies!
Bijlage: afbeelding.jpg Reageer
Re: interessante casus, wie denkt er mee
Naam: Leon (datum: 09-04-2009 10:22)
Leuk he, die brandweerliften? Ik zit op dit moment met een soortgelijke kwestie waarbij het Bouwbesluit mij onvoldoende info kon verschaffen. De SBR bood in mijn geval uitkomst: http://www.sbr.nl/default.aspx?ctid=4738
Afgaande van de 2 voorbeelden in deze publicatie is dit voor jou ook wel bruikbaar. Mocht je trouwens de info uit de NEN-EN 81-72 (nl) nodig hebben, kijk dan even op de site van Kone liften (www.kone.nl). Zij hebben een technische informatiegids over brandweerliften beschikbaar.
Naam: Leon (datum: 09-04-2009 10:22)
Leuk he, die brandweerliften? Ik zit op dit moment met een soortgelijke kwestie waarbij het Bouwbesluit mij onvoldoende info kon verschaffen. De SBR bood in mijn geval uitkomst: http://www.sbr.nl/default.aspx?ctid=4738
Afgaande van de 2 voorbeelden in deze publicatie is dit voor jou ook wel bruikbaar. Mocht je trouwens de info uit de NEN-EN 81-72 (nl) nodig hebben, kijk dan even op de site van Kone liften (www.kone.nl). Zij hebben een technische informatiegids over brandweerliften beschikbaar.
Re: interessante casus, wie denkt er mee
Naam: Kees S , van MVSA (datum: 09-04-2009 11:42)
Pas op met de SBR publicatie, deze is verouderd. De voorschriften spreken van een tegen brand beschermde hal (vertaling van Europese norm) In de praktijk betekent dit dat een brandweerlift een aparte hal nodig heeft, waar geen enkele woningentree op uitkomt. Situatie zoals in uw bijlage is correct.
Naam: Kees S , van MVSA (datum: 09-04-2009 11:42)
Pas op met de SBR publicatie, deze is verouderd. De voorschriften spreken van een tegen brand beschermde hal (vertaling van Europese norm) In de praktijk betekent dit dat een brandweerlift een aparte hal nodig heeft, waar geen enkele woningentree op uitkomt. Situatie zoals in uw bijlage is correct.
Re: interessante casus, wie denkt er mee
Naam: Rooy (datum: 09-04-2009 11:58)
In de praktijk betekent dit dat een brandweerlift een aparte hal nodig heeft, waar geen enkele woningentree op uitkomt.
Conform het antwoord van VROM (kan zo snel het artikel niet vinden maar in deze nieuwsbrief van amsterdam staat het ook uitgelegd: http://www.oga.amsterdam.nl/bijlagen/bouwbrief/67.pdf ) mag je wel een woningentree laten uitkomen in een rooksluis van een brandweerlift. Zolang je de toegangsdeur brandwerend en zelfsluitend uitvoert.
Het volledige artikel staat in het blad bouwregel in de praktijk.
Reageer
Naam: Rooy (datum: 09-04-2009 11:58)
In de praktijk betekent dit dat een brandweerlift een aparte hal nodig heeft, waar geen enkele woningentree op uitkomt.
Conform het antwoord van VROM (kan zo snel het artikel niet vinden maar in deze nieuwsbrief van amsterdam staat het ook uitgelegd: http://www.oga.amsterdam.nl/bijlagen/bouwbrief/67.pdf ) mag je wel een woningentree laten uitkomen in een rooksluis van een brandweerlift. Zolang je de toegangsdeur brandwerend en zelfsluitend uitvoert.
Het volledige artikel staat in het blad bouwregel in de praktijk.




![[ S&W Consultancy ]](topics//logo.gif)
![[ Emma Interieuradvies]](topics/index/emma.png)